Sign up to get new listings emailed daily! JOIN SIGN IN
Sheila Clark
Realtor
REALTOR®, Five Star, SFR, SRS,
Cell (904) 823-5523 Cell

3059 3rd Avenue N, Saint Petersburg, FL 33713

$895,000

47 Total Photos [Click to View All]

Property Description

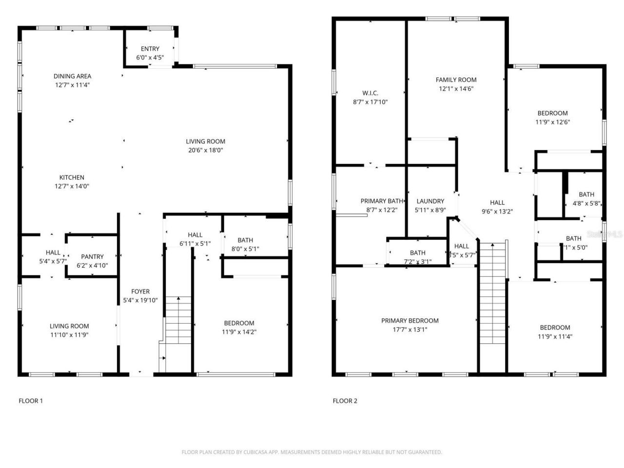
Located in the highly desirable Historic Kenwood neighborhood and safely nestled in a non-flood zone, this 2017-built block construction home delivers nearly 3,000 square feet of modern comfort and thoughtful design. Walking up to your front porch you are greeted by towering Royal Palms and a majestic Bismarck Palm, a true Florida paradise. ZONED CRT-1Step inside to discover a layout that truly lives large. This home offers four spacious bedrooms, three full bathrooms, a huge upstairs bonus room that can easily convert into a fifth bedroom or office, a dedicated laundry room and a bright family room perfect for everyday living. The kitchen is the heart of the home with its generous walk-in pantry, dedicated coffee bar and an oversized island. The kitchen has an open flow to the living and dining areas which makes this layout an entertainer's dreams come true. The primary suite is a true retreat with plenty of room for a king-size bed and dressers along with a massive walk-in closet measuring 17 by 8.5 feet. The ensuite bathroom is equally impressive with a double vanity, separate toilet room, walk-in shower, and relaxing soaking tub. This primary suite is separate from the other bedrooms allowing privacy and relaxation. Outside, the fully fenced backyard is built for Florida living with a huge paver patio, a covered porch with space for an outdoor TV, and tropical landscaping featuring more Royal Palms, lush Areca palms, and plenty of room to add a pool and hot tub. Storage is no issue thanks to the detached two-car garage with epoxy floors plus two backyard sheds that offer even more space for tools, toys, or decorations. With paid-off solar panels, enjoy low monthly electric costs and energy-efficient living without sacrificing style or space. Two separate AC units help keep the home comfortable year-round. This home has an option to connect gas if desired. Located just steps from local favorites like Gateways Subs, PePe's Cantina, and The Study Wine & Bourbon Lounge nights out are made simple. Looking for a nice walking path, you're a block from Seminole Park which is home to beloved Historic Kenwood neighborhood events throughout the year. This home blends community charm with modern convenience. Priced to sell and offering plenty of space, this is your chance to join one of St. Pete's most vibrant and artistic neighborhoods.

3059 3rd Avenue N | MLS# TB8438067

This single family home located at 3059 3rd Avenue N, Saint Petersburg, FL 33713 is currently listed for sale with an asking price of $895,000. This property was built in 2017 and has 4 bedrooms and 3 full baths with 2963 sq. ft. 3rd Avenue N is located in the HALLS CENTRAL AVE 2 subdivision. Search HALLS CENTRAL AVE 2 real estate on sheilaclark.watsonrealtycorp.com today.

Upcoming Open Houses

Open House Sunday March 15th, 12:00pm - 3:00pm

Property Features

Property Type: Residential - Single Family
Cooling: Central Air
Garage: 2
Heating: Central
Lot Size: 0.15 Acres
Roof Type: Shingle
Stories: 2.0
Taxes: $8,996
Year Built: 2017
Square Feet: 2,963

Amenities

Ceiling Fans(s)
PrimaryBedroom Upstairs
Stone Counters
Walk-In Closet(s)
Window Treatments
Hurricane Shutters
Storage

Feature Descriptions

Additional Rooms: Bonus Room, Family Room, Inside Utility
Appliances: Dishwasher, Electric Water Heater, Microwave, Range, Refrigerator
Days on Site: 144
Directions: From St. Pete High School Head west on 5th Ave N toward 26th St N, Turn left onto 31st St N, turn left on alley next to Urban League, park in garrage parking pad walk to front door. Or park on street in front of home but it is one way traffic
Exterior: Block
Flood Zone Code: X
Flooring: Luxury Vinyl, Tile
Foundation: Slab
Garage Dimensions: 20x20
Home Warranty Y/N: No
Listing Terms: Cash, Conventional, VA Loan
Lot Dimensions: 0.15
Other Structures: Shed(s)
Ownership: Fee Simple
Pets Allowed: Yes
Pets Restrictions: Buyers to confirm with local city and county rules on any pet restrictions.
Property Attached Y/N: No
Property Sub-Type: Single Family Residence
Sewer: Public Sewer
Showing Instructions: ShowingTime
Special Sale Provisions: None
Utilities: BB/HS Internet Available, Cable Connected, Electricity Connected, Sewer Connected, Water Connected
Water: Public
Water Access Y/N: No
Windows: Blinds, Shades

Room Sizes

Family Room: 12x11
Kitchen: 15x12
Dining Room: 10x12
Living Room: 16x17
Bedroom 1: 12x12
Bonus Room: 13x14
Bedroom 2: 11x12
Bedroom 3: 11x12
Primary Bedroom: 13x13
Primary Bathroom: 9x11

Local Schools

High School: St. Petersburg High-PN
Middle School: John Hopkins Middle-PN
Elementary School: Mount Vernon Elementary-PN

Listed By / Shown By

Listed By

Agency Name: REAL BROKER, LLC
Agency Contact: 855-450-0442

Shown By

Agent Name: Sheila Clark
Agent Phone: Cell (904) 823-5523 Cell
Agency Title: Watson Realty Corp., REALTORS ®

IDX logo

Estimate Your Payment

Estimated Payment

$ 5,326.53 per month $4,315.83 Principal & Interest $749.67 Property Tax $261.04 Homeowner's Insurance

Change Payment Information

%
years/fixed
yearly
yearly (est.)
(Payments are an estimate and may vary by lender)
Disclaimer: All information deemed reliable but not guaranteed. All properties are subject to prior sale, change or withdrawal. Neither listing broker(s) or information provider(s) shall be responsible for any typographical errors, misinformation, misprints and shall be held totally harmless. Listing(s) information is provided for consumers personal, non-commercial use and may not be used for any purpose other than to identify prospective properties consumers may be interested in purchasing. Information on this site was last updated 03/10/2026. The listing information on this page last changed on 03/10/2026. The data relating to real estate for sale on this website comes in part from the Internet Data Exchange program of Delta Media Group MLS (last updated Tue 03/10/2026 12:14:27 AM EST) or GAMLS (last updated Mon 03/09/2026 11:14:58 PM EST) or Stellar MLS (last updated Mon 03/09/2026 11:59:20 PM EST) or SPC MLS (last updated Mon 03/09/2026 11:20:30 PM EST) or Martin MLS (last updated Mon 03/09/2026 11:38:19 PM EST) or Indian River MLS (last updated Mon 03/09/2026 11:30:27 PM EST) or Daytona MLS (last updated Mon 03/09/2026 11:36:51 PM EST) or Northeast Florida MLS (last updated Tue 03/10/2026 12:08:47 AM EST) or Beaches MLS (last updated Tue 03/10/2026 12:05:36 AM EST) or BORMLS (last updated Mon 03/09/2026 11:15:20 PM EST) or Golden Isles MLS (last updated Mon 03/09/2026 11:26:41 PM EST) or Amelia/Nassau MLS (last updated Mon 03/09/2026 11:25:21 PM EST) or Dixie Gilchrist Levy MLS (last updated Mon 03/09/2026 11:42:28 PM EST). Real estate listings held by brokerage firms other than Watson Realty Corp., REALTORS ® may be marked with the Internet Data Exchange logo and detailed information about those properties will include the name of the listing broker(s) when required by the MLS. All rights reserved.

Listing data and photos distributed by MLSGRID
Member Participants (and their affiliated licensees, if applicable) shall indicate on their websites that IDX information is provided exclusively for consumers’ personal non-commercial use, that it may not be used for any purpose other than to identify prospective properties consumers may be interested in purchasing, that the data is deemed reliable but is not guaranteed by MLS GRID, and that the use of the MLS GRID Data may be subject to an end user license agreement prescribed by the Member Participant’s applicable MLS if any and as amended from time to time. MLS GRID may, at its discretion, require use of other disclaimers as necessary to protect Member Participant, and/or their MLS from liability.
Based on information submitted to the MLS GRID. All data is obtained from various sources and may not have been verified by broker or MLS GRID. Supplied Open House Information is subject to change without notice. All information should be independently reviewed and verified for accuracy. Properties may or may not be listed by the office/agent presenting the information.



Privacy Policy / DMCA Notice / ADA Accessibility

Login to My Homefinder

Pixel